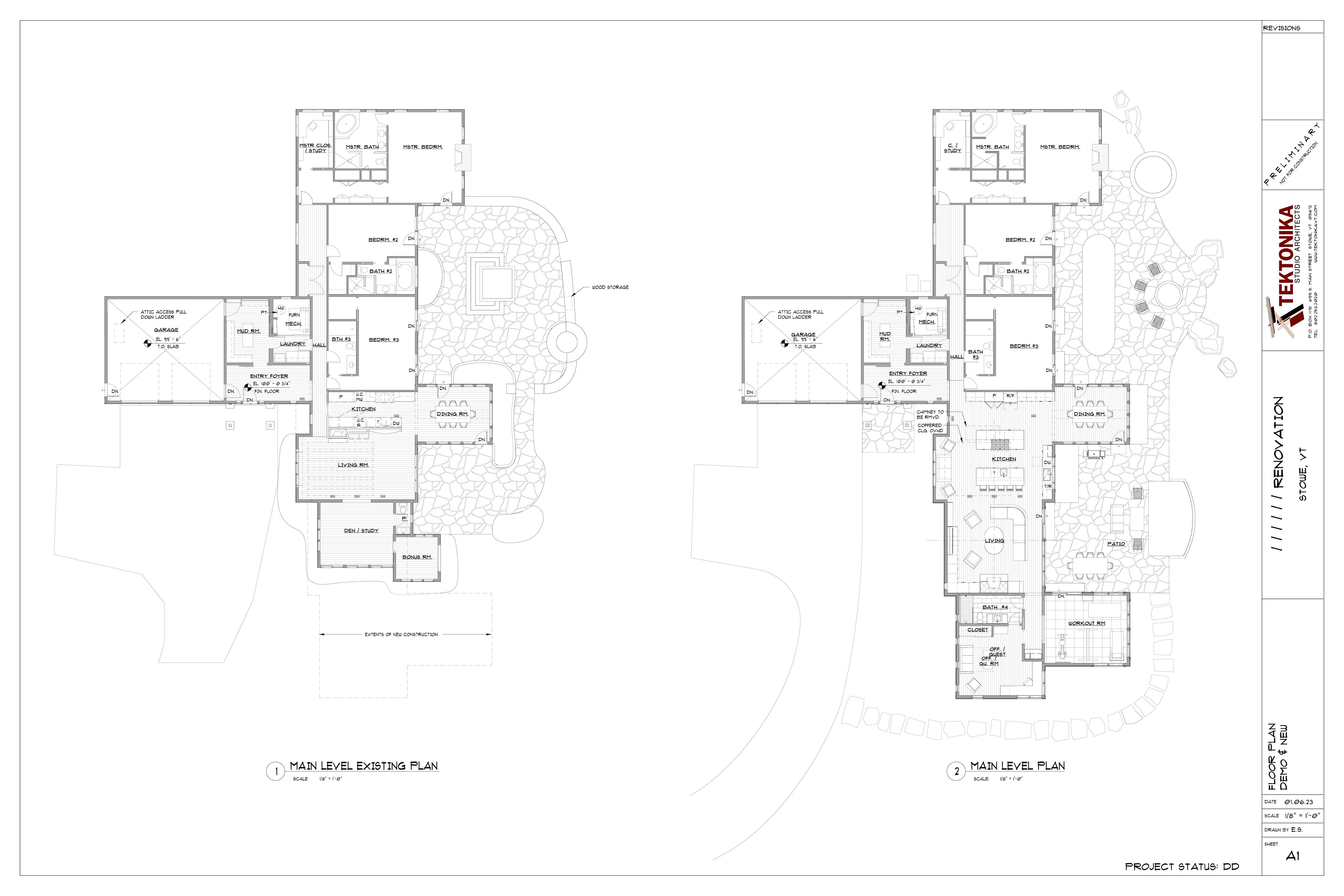
Project: A large residential addition in Design Development. This set was used by GC and window vendor for initial pricing. Development @ about 80% of the Construction Document Set. Further development of interior design, architectural details, and review by engineers (structural and mechanical) still to come.  Work done at Tektonika Studio Architects. Client name redacted
Role: sole draftsperson and co-designer
Software: Autodesk Revit 

You may also like